€ 460.000,- k.k.
Vakantiegevoel aan het water – mét eigen boot en aanlegsteiger!
Het gevoel van op vakantie te zijn, maar dan gewoon in uw eigen huis? Dat kan! Deze prachtige woning, gelegen op een unieke locatie aan recreatieplas ’t Bovenwater, combineert rust, ruimte en ontspanning met alle gemakken van het dagelijks leven. Dankzij de ligging op een landtong en direct aan het water ervaart u hier iedere dag een ultiem vakantiegevoel. En als extra ontvangt u bij de woning zelfs een boot kado!
Of u nu wilt varen, vissen, zwemmen, schaatsen in de winter of simpelweg genieten van het panoramische uitzicht en de natuur: deze woning biedt het allemaal.
Indeling
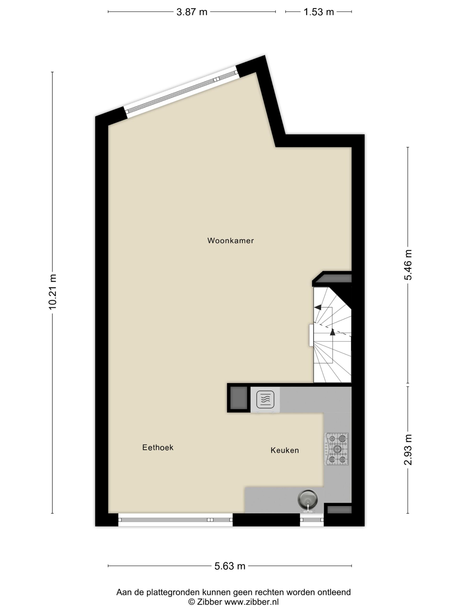
Begane grond
Entree, hal met meterkast, toilet, toegang tot de berging, badkamer en een ruime werk-/slaapkamer met kantoor. Via openslaande deuren bereikt u de tuin met aanlegsteiger aan het water – de perfecte plek om te werken of ontspannen met uitzicht op het Bovenwater.
Eerste verdieping
De royale woonkamer is voorzien van een groot panoramaraam dat een adembenemend uitzicht biedt. De halfopen U-vormige keuken grenst aan de eetkamer, eveneens met vrij uitzicht over het water.
Tweede verdieping
Overloop, technische ruimte met opstelling van de cv-ketel (2020) en heteluchtverwarming (2020), berging, tweede badkamer met wastafel, douchecabine en toilet, twee slaapkamers en een zonnig dakterras met fenomenaal uitzicht. De hoofdslaapkamer beschikt over een inbouwkast én airco.
Tuin
De achtertuin ligt direct aan ’t Bovenwater, is ideaal gesitueerd op het zuidwesten en beschikt over een eigen aanlegsteiger. Hier kunt u van ’s ochtends tot zonsondergang genieten van het buitenleven.
Bijzonderheden:
– Wonen op een unieke locatie in Lelystad, direct aan het water.
– U-vormige inbouwkeuken met koelkast, oven, 5-pits gasfornuis, afzuigschouw en vaatwasser.
– Kunststof kozijnen geplaatst in 2024.
– Energielabel A.
– Fraaie verbinding via de Oostvaardersdijk richting Almere en Amsterdam.
– Het Bovenwater, jachthaven en Oostvaardersplassen in de directe omgeving.
– Voorzieningen zoals basisschool, kinderopvang en huisartsenpraktijk op loopafstand.
– Eigen aanlegsteiger mét boot.
– Oplevering in overleg.
Bieden vanaf: € 460.000,00 kk.
Wilt u iedere dag wakker worden met een vakantiegevoel én wonen op één van de mooiste plekken van Lelystad? Dan is dit uw kans! prijs.
- 130 m2
- 105 m2
- 2
Kenmerken Workumstraat 7
Overdracht
| Vraagprijs | € 460.000,- k.k. |
|---|---|
| Aanvaarding | In overleg |
Oppervlaktes en inhoud
| Perceel oppervlakte | 105 m2 |
|---|---|
| Woonoppervlakte | 130 m2 |
| Inhoud | 461 m3 |
Bouw
| Soort | Eengezinswoning |
|---|---|
| Bouwvorm | Bestaande bouw |
| Bouwjaar | 2002 |
| Dak type | Plat dak |
| Isolatievormen | Dakisolatie, Muurisolatie, Dubbelglas |
| Energielabel | A |
Indeling
| Aantal verdiepingen | 3 |
|---|---|
| Aantal kamers | 4 |
| Aantal slaapkamers | 2 |
| Aantal badkamers | 2 |
Maandlasten
Ligging Workumstraat 7
Voorzieningen
- De Sluis 301 m Binnendijk 198 LELYSTAD
- Theologische Universiteit van de Gereformeerde Kerk (Vrijg) in Nederland 34 km Broederweg 15 KAMPEN
- Landstede 4 km Het Ravelijn 1 LELYSTAD
- Amsterdamse Hogeschool voor de Kunsten 38 km Jodenbreestraat 3 AMSTERDAM
- Theologische Universiteit van de Gereformeerde Kerk (Vrijg) in Nederland 34 km Broederweg 15 KAMPEN
Centraal gelegen informatie over de buurt
Aantal inwoners
In de gemeente
76.937