€ 475.000,- k.k.
Instap klare woning!!
Prachtige 2-onder-1-kapwoning met berging en carport, gelegen in een rustige omgeving aan een doodlopende straat. De kinderspeeltuin ligt bijna voor de deur. Deze sfeervolle woning is zowel aan de voorkant als achterkant heerlijk vrij, wat zorgt voor veel privacy en lichtinval. Verder heeft de woning maar liefst 5 slaapkamers en is daardoor ideaal als u veel ruimte zoekt.
Indeling:
Begane grond:
Bij binnenkomst komt u in de tuingerichte woonkamer met schuifpui naar de tuin die een warm welkom biedt. De grote ramen zorgen voor een prachtig uitzicht op de tuin en creëren een lichte sfeer. De moderne half open inbouwkeuken met kookeiland is voorzien van diverse apparatuur en biedt voldoende ruimte om culinaire creaties te bereiden.
1e verdieping
Op de eerste verdieping vindt u drie ruime slaapkamers waarvan 1 met balkon. Via de overloop komt u in de grote berging met aansluiting voor de wasmachine en droger. Daarnaast is er een moderne vergrote badkamer aanwezig, compleet uitgerust met dubbele wastafel, zwevend toilet, ligbad, inloopdouche en vloerverwarming.
2e verdieping
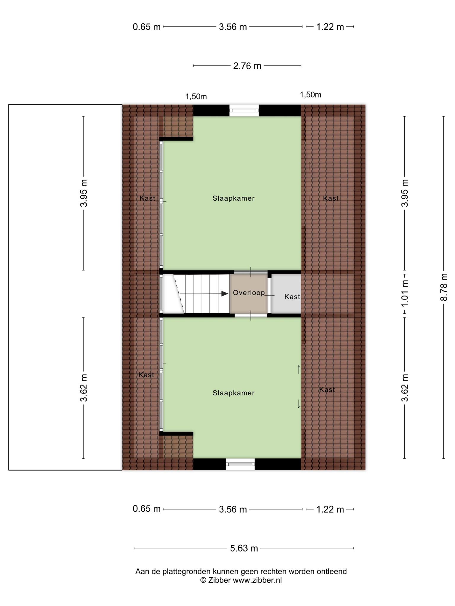
Vaste trap, kleine overloop met toegang tot de 2 slaapkamers met dakkapel voor extra ruimte en licht.
Bijzonderheden:
• Tuingerichte woonkamer
• De begane grond is voorzien van een natuurstenen vloer (graniet) met vloerverwarming
• De woning is aangesloten op stadsverwarming en heeft diverse airco’s
• De moderne keuken is uitgerust met een vaatwasser, combimagnetron, koelkast, inductiekookplaat, volautomatische koffiemachine en afzuigkap
• Tuin op het zuidwesten met een terras en hottub met houtkachel aan het water
• Zeer goed onderhouden en volledig geïsoleerd
• Energielabel A
- 144 m2
- 261 m2
- 5
Kenmerken Langesloot 34
Overdracht
| Vraagprijs | € 475.000,- k.k. |
|---|---|
| Aanvaarding | In overleg |
Oppervlaktes en inhoud
| Perceel oppervlakte | 261 m2 |
|---|---|
| Woonoppervlakte | 144 m2 |
| Inhoud | 555 m3 |
Bouw
| Soort | Eengezinswoning |
|---|---|
| Bouwvorm | Bestaande bouw |
| Bouwjaar | 1994 |
| Dak type | Zadeldak |
| Isolatievormen | Dakisolatie, Muurisolatie, Vloerisolatie, Dubbelglas |
| Energielabel | A |
Indeling
| Aantal verdiepingen | 3 |
|---|---|
| Aantal kamers | 6 |
| Aantal slaapkamers | 5 |
| Aantal badkamers | 1 |
Maandlasten
Ligging Langesloot 34
Voorzieningen
- Basisschool De Helmstok 196 m Volkerakstraat 30 LELYSTAD
- Theologische Universiteit van de Gereformeerde Kerk (Vrijg) in Nederland 30 km Broederweg 15 KAMPEN
- Landstede 1 km Het Ravelijn 1 LELYSTAD
- Christelijke Hogeschool Windesheim 40 km Campus 2 ZWOLLE
- Theologische Universiteit van de Gereformeerde Kerk (Vrijg) in Nederland 30 km Broederweg 15 KAMPEN
Centraal gelegen informatie over de buurt
Aantal inwoners
In de gemeente
76.937